Cogicité est un bureau d’études en aménagement urbain conçu comme un atelier où se façonnent des solutions innovantes pour répondre aux défis de la ville d’aujourd’hui.

Il met sa polyvalence au service des collectivités et des aménageurs publics, ou privés, dans le cadre de différentes missions :

– Maîtrise d’oeuvre
– Assistance à maîtrise d’ouvrage et études préliminaires
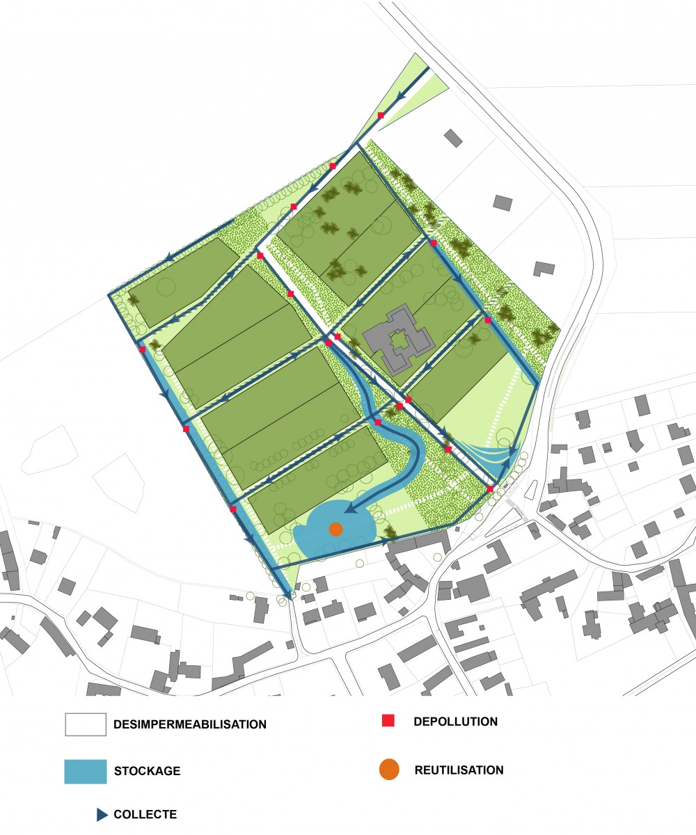
– Expertise technique réglementaire en hydrologie urbaine
– Formation continue en gestion durable de l’eau
.